1369 Sun Tree DriveRoseville, CA 95661
Due to the health concerns created by Coronavirus we are offering personal 1-1 online video walkthough tours where possible.


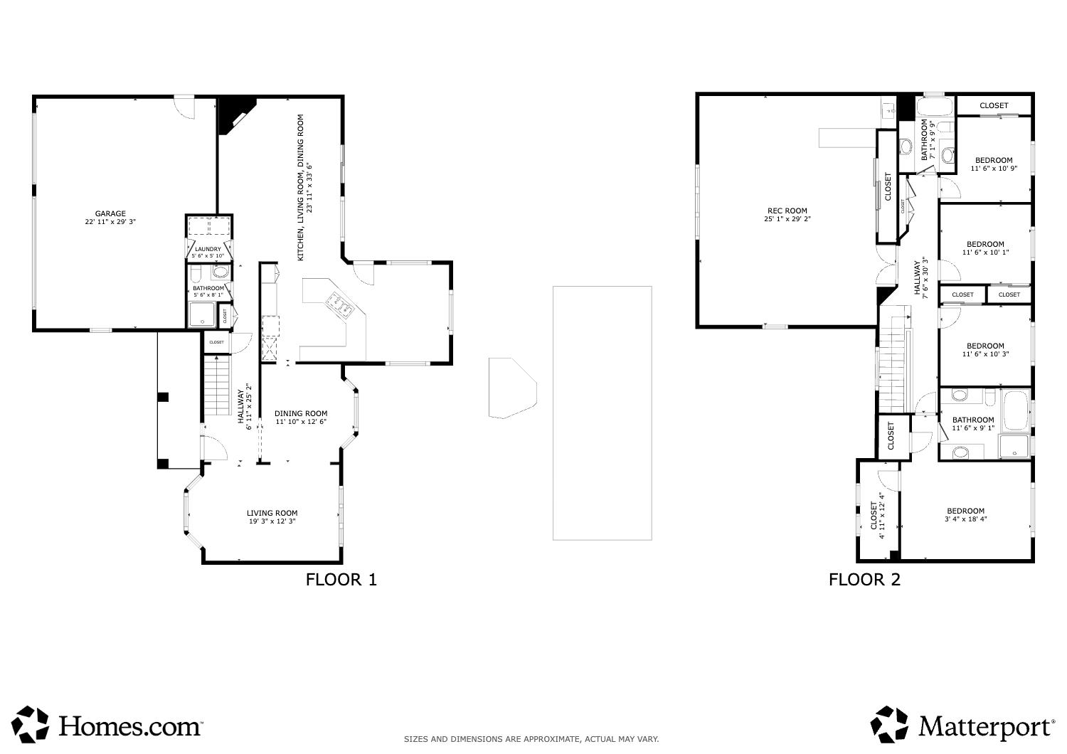
Professional Photos & Video are Coming Soon! This 4 Bedroom 3 Full Bath Home has over 3,200 sq ft with real hardwood & tile flooring, with all 4 bedrooms on one floor, plus a huge Flex-space Room (over 23'x 29') that could be ideal for the ultimate Home Business Office, a Yoga Studio, Personal Training (or the amazing gym you've always imagined), or even Home Schooling or Day Care! This space could be a dream Man Cave'' with space for a Pool Table, Ping Pong (yes, the ceilings are that high),Theater Room and pretty much anything you can imagine! It could be perfect for extended guests or Multi-generational living, with a sink, breakfast bar, closet with shelving and is complete with a convertible sleeper sectional (some furnishings can remain with the property, for the right offer). This space has so many possibilities, and feels like a bright Loft Apartment. The Primary Suite has great natural light, with Cathedral Ceilings and 2 Walk-in Closets. The Primary Suite Bathroom has 2 separate vanities, a walk-in shower and a relaxing jetted tub. The additional bedrooms are located on the other side of the Primary Suite Bathroom, for additional privacy. At the other end of the house is the upstairs hallway bathroom featuring 2 large vanities with a tub/shower combo. Additional linen storage makes organization easy. A Whole House Fan upstairs helps to maximize cooling efficiency. This home has a floor plan that is ideal for entertaining. The open kitchen is attached to the oversized Breakfast Room (currently with seating for 8, that can remain with the property) and has cathedral ceilings, plus easy access to the back yard. The private backyard has lush (even in the Winter) landscaping with Pool, 2 Waterfalls & Spa next to a large seating and lounge area. The extra deep 3 car garage comes with a workbench, utility sink & storage shelves & cabinets. This East Roseville home is just a few blocks from 4 shopping centers, with grocery stores, restaurants, and services like Veterinarian Care, Dry Cleaning, Hair & Nail Salons, Fitness, Martial Arts, Tutoring, Coffee Shops and more. This home is nestled back among Evergreen trees, on a surprisingly quiet street and across from a large well maintained open green space area with Runner's Hill'' and provides an easy connection to the Roseville Bike Trail System. This home has a great location with so many lifestyle possibilities! Come for some snacks & hot cocoa, and tour this home at an upcoming Open House.
| 9 hours ago | Listing updated with changes from the MLS® | |
| yesterday | Status changed to Active | |
| 3 weeks ago | Listing first seen on site |
All measurements and all calculations of the area are approximate. Information provided by Seller/Other sources, not verified by Broker. All interested persons should independently verify the accuracy of information. Provided properties may or may not be listed by the office/agent presenting the information. Data maintained by MetroList® may not reflect all real estate activity in the market. All real estate content on this site is subject to the Federal Fair Housing Act of 1968, as amended, which makes it illegal to advertise any preference, limitation or discrimination because of race, color, religion, sex, handicap, family status or national origin or an intention to make any such preference, limitation or discrimination. Terms of Use
Last checked 2026-01-17 05:55 AM PST

Did you know? You can invite friends and family to your search. They can join your search, rate and discuss listings with you.